Mulgoa Street
Rationale
We do not often attempt a classical design, but when we do, we try to not make compromises.
The design achieves a well-balanced aesthetic between the proportions of a classical building and the intricate details that one can find both on the exterior façade and each of the interior rooms.
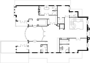
The indoor and outdoor spaces are developed around a central point that is represented by the two storeys high sitting area opening to the back garden. A built-in 1500mm high aquarium tank assures a degree of privacy to the sitting area, while also creating a spectacular effect as point of focus when you enter the residence.
The car parking spaces are situated on the basement level, to allow for extensive landscaped area at the ground level. The residence is provided with an internal lift, that connects the basement facilities (theatre, gym, multi-purpose room, cellar) with the generous foyers of the ground and first floor. Each of the 4 bedrooms on the first floor has its own ensuite and walk-in-robe and have direct views to the rear garden from the common sitting area. An additional guest bedroom is located on the ground floor.
The natural light and warm colours of the floors associated with the white of the walls and columns create a feeling of calm and relaxation that any home should offer to its residents.
Profile
Suburb
Brighton
Project
Single Residential
Services
Conceptual Design
Construction Documentation
Stage
Built
Year
2009-2010












